









Vente Appartement Dinard 35800 Plages-Saint-Malo-Dinan
- appartement
-
- DINARD (35800)
- Plages-Saint-Malo-Dinan
-
Réf. : LI1-595
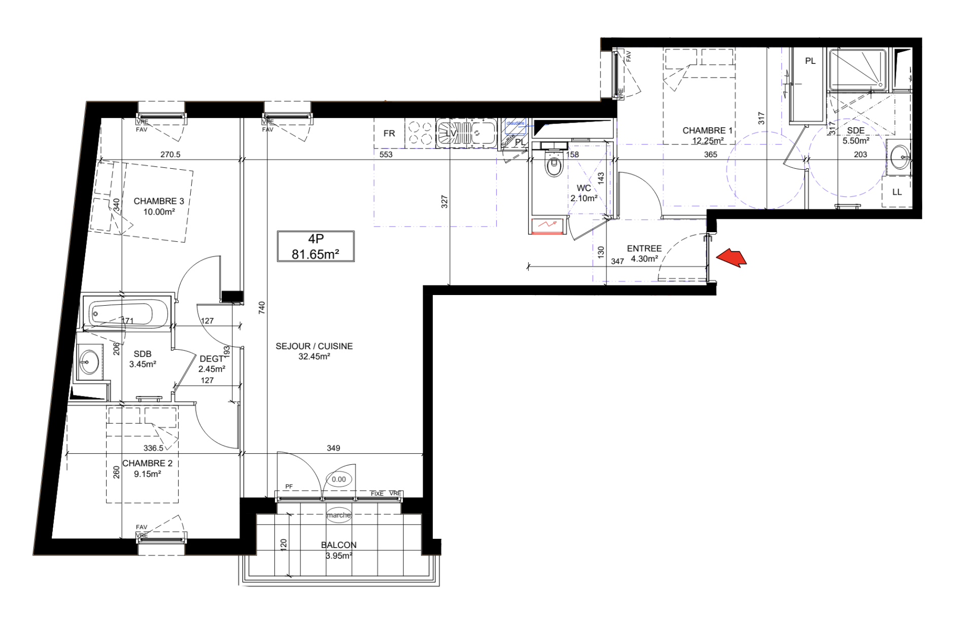
LIEUX UNIQUES ® Rennes-Dinard-Saint-Malo x PROPRIÉTÉS PRIVÉES. Contacter Cédric LARZUL de LIEUX UNIQUES ® Rennes-Dinard-Saint-Malo pour ce très bel appartement de 81.65 m² (Loi Carrez) (au 1er étage d'une petit résidence qui comporte seulement 11 appartements), situé dans l'hyper-centre de Dinard et à proximité des commerces, des services et des plages du Prieuré, de l'Écluse et Saint-Énogat.
Cet appartement comprend : une entrée (de 4.30 m²), un salon-séjour-cuisine (de 32.45 m²), une chambre 1 (de 12.25 m²), une chambre 2 (de 9.15 m²), une chambre 3 (de 10.00 m²), une salle de bains (de 3.45 m²), une salle d'eau (de 5.50 m²), un WC (de 2.10 m²), un dégagement (2.45 m²) et un balcon (de 3.95 m²).
MON AVIS : un appartement dans un emplacement de premier choix au sein d'une station balnéaire réputée comme l'une des plus prestigieuses de France. Cet immeuble de 4 étages est couronnés d’un attique subtilement habillé de zinc prépatiné. L'appartement est doté de prestations et d'équipements pour votre bien-être et votre confort : production d’eau chaude par chaudière individuelle gaz à condensation, radiateurs métalliques avec robinets thermostatiques, carrelage dans le séjour et la cuisine, parquet dans les chambres, salle de bains avec faïence toute hauteur et sèche serviettes, WC suspendu, volets roulants à commande électrique dans les pièces principales, pare-vues en métal laqué gris anthracite et verre dépoli et serrure de sécurité 3 points de fermeture
Le toit-terrasse végétalisé permet de bénéficier d’une bonne isolation thermique été comme hiver. Ce choix de revêtement végétal contribue au biotope de ce très bel ensemble urbain.
LIEUX UNIQUES ® Rennes-Dinard x PROPRIÉTÉS PRIVÉES - 06.25.26.16.76 - plus d’informations sur 3w lieuxuniques com. Le prix de vente est de 518.000 euros honoraires d’agence inclus (honoraires d’agence à la charge du vendeur). Immobilier de Luxe LIEUX UNIQUES ® - Immobilier de Prestige LIEUX UNIQUES ® - Immobilier de Charme LIEUX UNIQUES ®. RCS BLOIS : 790 024 848. Lot : 1103.
- Résumé
- Surface 81.65 m²
- Nombre de pièces 4
- Nombre de chambres 3
- En copropriété 11 lots
- pièces
- 1 cuisine 32.45 m²
- 1 entrée 4.3 m²
- 1 dégagement 2.45 m²
- 1 salon
- 1 séjour
- 3 chambres 12.25 m², 9.15 m², 10 m²
- 1 salle de bains 3.45 m²
- 1 salle d'eau 5.5 m²
- 1 WC 2.1 m²
- 1 balcon 3.95 m²
- Info. financières
- Prix de vente Honoraires à la charge du vendeur 498 000 €
- Consulter le barème des honoraires
- Environnement
- Quartier Plages-Saint-Malo-Dinan
- Transport Autoroute , Bus , Gare
- A proximité Golf (7 km) , Centre commercial (650 m) , Centre ville (500 m) , (1 km) , École (800 m)
- Info. complémentaires
- Année de construction 2026
- Chauffage individuel , chaudière , gaz
- Ascenseur Oui
- Diagnostics
- DPE :

Demande de renseignements
Votre interlocuteur
Cédric LARZUL
- Tours - Amboise - Orléans - Blois - Nantes - La Baule
- 0625261676
LIEUX UNIQUES ®
- 4, rue du 1er Septembre 41000 Blois
- 0625261676
