







Vente Appartement Honfleur 14600 DEAUVILLE-LE HAVRE
- appartement
-
- HONFLEUR (14600)
- DEAUVILLE-LE HAVRE
-
Réf. : LI1-624
LIEUX UNIQUES ® Normandie x PROPRIÉTÉS PRIVÉES. Contacter Cédric LARZUL au 06.25.26.16.76 pour cet appartement (de troisième étage) de 87.06 m² (avec sa terrasse de 2.68 m²), dans un petit immeuble de standing (qui comporte 28 appartements) et situé à Honfleur, à 2.80 km à pied de la plage du Butin.
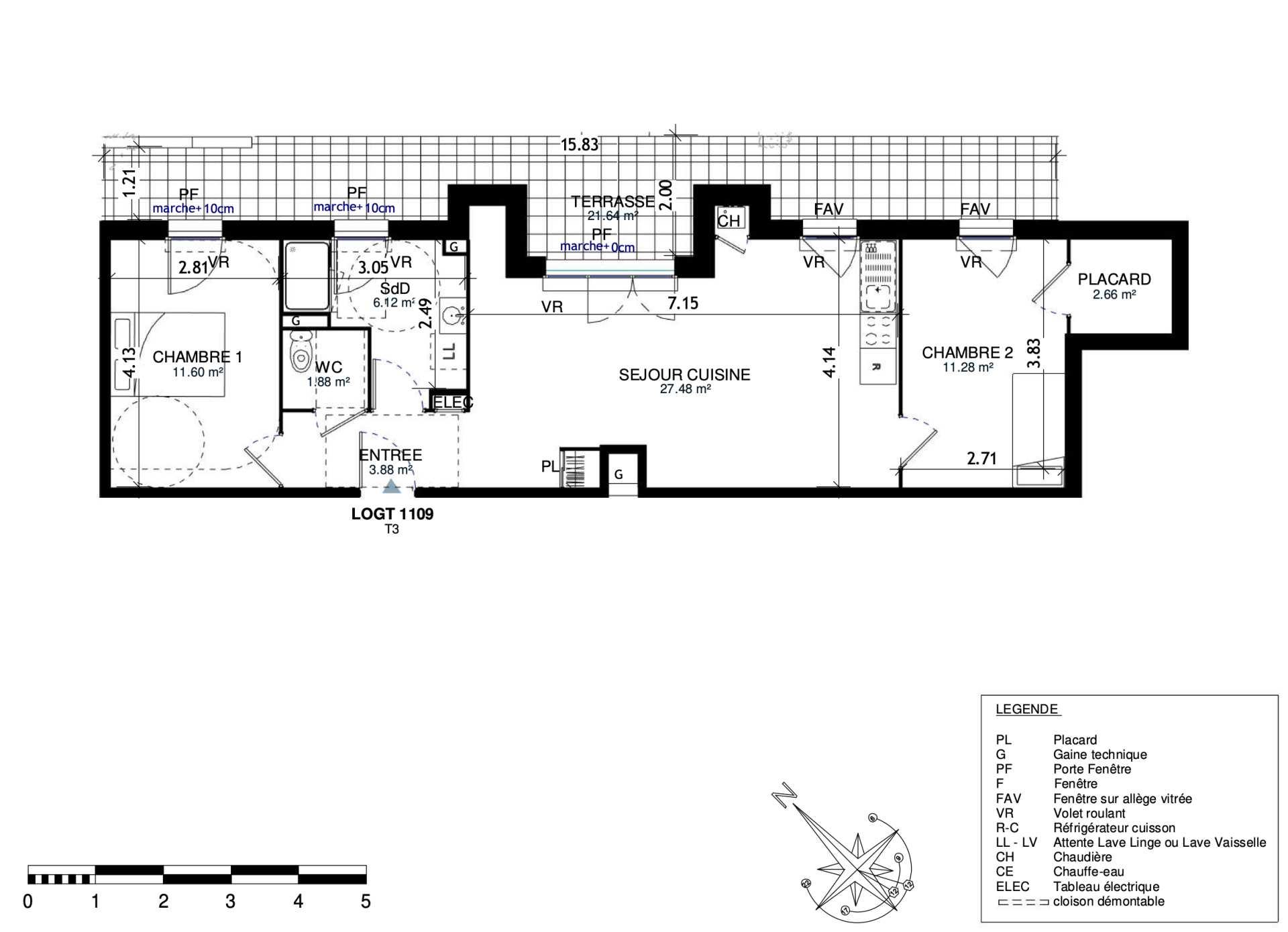
Cet appartement comporte : une entrée (de 9.30 m²), un placard (de 2.96 m²), une salle de bains (de 5.88 m²), un salon-séjour-cuisine (de 31.46 m²), un WC (de 2.54 m²), 3 chambres (respectivement de 12.46 m², 11.30 m² et 11.16 m²) et une terrasse (de 2.54 m²).
MON AVIS : L'emplacement est idéal : vous êtes à 950 mètres du port de plaisance, du centre-ville avec ses commerces et ses services de proximité. Chaudière pour l'eau et le chauffage au gaz de ville. Parquet stratifié sur les zones sèches. Toiture de l'immeuble en zinc. Tout à l'égout. Huisseries en PVC et volets roulants. L'appartement est doté d'un parking en sous-sol et d'un ascenseur. L'appartement comporte un interphone avec la possibilité de faire un branchement vidéophonie. Prise RJ45 dans le salon et une chambre. L’immeuble sera équipé d’une antenne collective hertzienne compatible TNT en toiture.
MON CONSEIL : l'emplacement est "topissime" à proximité immédiate de l'hyper-centre, mais également 16 km de Deauville et un accès direct au Havre. Honfleur est réputée pour ses spécialités culinaires qui raviront les papilles des plus gourmands !
LIEUX UNIQUES ® Normandie x PROPRIÉTÉS PRIVÉES - 06.25.26.16.76 - plus d’informations sur 3w lieuxuniques com. Le prix de vente est de 255.000 euros honoraires d’agence inclus (honoraires d’agence à la charge du vendeur). Immobilier de Luxe LIEUX UNIQUES ® - Immobilier de Prestige LIEUX UNIQUES ® - Immobilier de Charme LIEUX UNIQUES ®. RCS BLOIS : 790 024 848. Lot : 1109.
- Résumé
- Surface 64.9 m²
- Nombre de pièces 3
- Nombre de chambres 2
- pièces
- 1 cuisine
- 1 entrée 3.88 m²
- 1 salon 27.48 m²
- 1 séjour
- 2 chambres 11.6 m², 11.28 m²
- 1 placard 2.66 m²
- 1 salle de bains 6.12 m²
- 1 WC 1.88 m²
- 1 terrasse 21.64 m²
- Info. financières
- Prix de vente Honoraires à la charge du vendeur 255 000 €
- Consulter le barème des honoraires
- Environnement
- Quartier DEAUVILLE-LE HAVRE
- Transport Autoroute (5 km) , Bus (88 m) , Gare (2 km)
- A proximité Golf (8 km) , Centre commercial (5 km) , Centre ville (1 km) , École (700 m)
- Info. complémentaires
- Année de construction 2024
- Chauffage individuel , chaudière , gaz
- Ascenseur Oui
- Diagnostics
- DPE :

Demande de renseignements
Votre interlocuteur
Cédric LARZUL
- Tours - Amboise - Orléans - Blois - Nantes - La Baule
- 0625261676
LIEUX UNIQUES ®
- 4, rue du 1er Septembre 41000 Blois
- 0625261676
