









Vente Appartement Tours 37000 Tours-Nord-Aéroport de Tours - Val de Loire
- appartement
-
- TOURS (37000)
- Tours-Nord-Aéroport de Tours - Val de Loire
-
Réf. : LI1-644
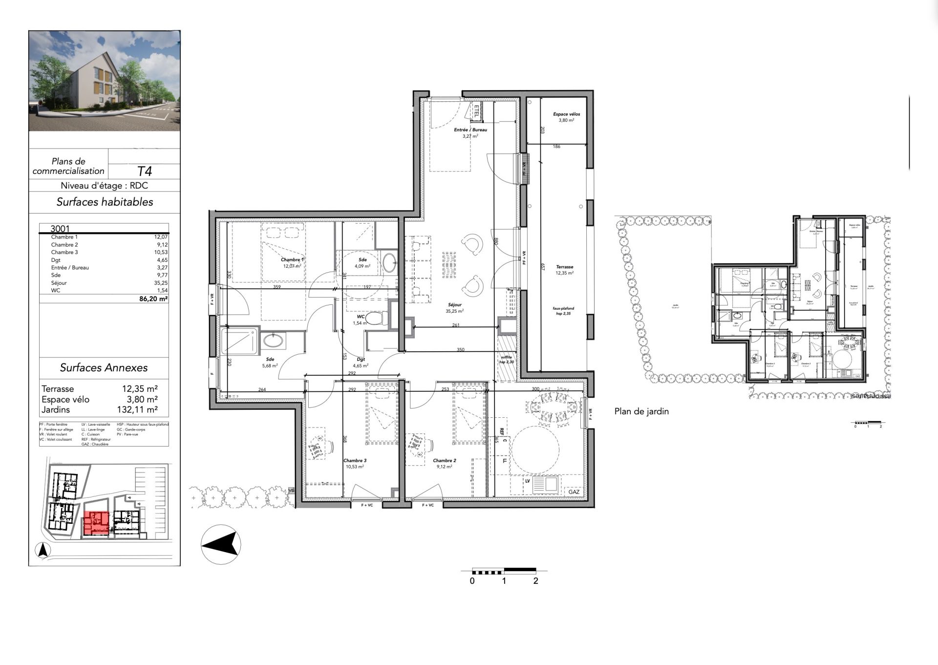
Contacter Cédric LARZUL de LIEUX UNIQUES ® Tours-Orléans-Blois-Chambord x PROPRIÉTÉS PRIVÉES au 06.25.26.16.76 pour cet appartement de 86.20 m² et sa terrasse de 12.35 m², positionné au RDC, avec son jardin de 132.11 m², son espace vélo de 3.80 m² et situé sur la commune de Tours-Nord à proximité des commerces, des services et de l'autoroute A10. Nombre d'appartements dans la copropriété : 20.
Cet appartement comporte : une entrée (3.27 m²), un dégagement (de 4.65 m²), un salon-séjour-cuisine américaine (de 35.25 m²), une chambre 1 (de 12.07 m²), une chambre 2 (de 9.12 m²), une chambre 3 (de 10.53 m²), une salle d'eau (de 9.77 m²) et un WC (de 1.54 m²). Cet appartement comprend une terrasse (de 12.35 m²), un espace vélo (de 3.80 m²) et un jardin (de 132.11m²).
MON AVIS : idéalement situé, cet appartement se trouve au sein d'un nouveau quartier totalement revisité où le végétal tient une place à part entière et doté de tous les commerces et commodités nécessaires au quotidien. Chauffage et eau au gaz de ville (chaudière gaz individuelle à condensation). Huisseries doubles-vitrages PVC et alu. Volets roulants. Fibre. Jardin privatif : Haies végétales et clôtures grillagées simple torsion plastifiées 120cm de hauteur autour des jardins privatifs. Ouverture des communs par système VIGIK. Interphone.
MON CONSEIL : Cette résidence s'installe dans le nord de la ville de Tours. Une vie agréable peut s'offrir à vous à 1 heure de Paris en TGV, avec la station de tramway à 2 minutes à pied, des arrêts de bus et tous les établissements d'accueil pour vos enfants.
LIEUX UNIQUES ® Tours-Orléans-Blois-Chambord x PROPRIÉTÉS PRIVÉES– Cédric LARZUL - 06.25.26.16.76. Plus d'informations sur 3w lieuxuniques com (Réf. LI1-644). Le prix de vente est exprimé Frais d’Agence Inclus (F.A.I.) soit 272.000 euros. (honoraires charge vendeurs). Immobilier de Luxe LIEUX UNIQUES ® - Immobilier de Prestige LIEUX UNIQUES ® - Immobilier de Charme LIEUX UNIQUES ®. RCS : 790 024 848 Blois. LOT n°3001.
- Résumé
- Surface 86.2 m²
- Surface du terrain 132.11 m²
- Nombre de pièces 4
- Nombre de chambres 3
- pièces
- 1 cuisine
- 1 entrée 3.27 m²
- 1 dégagement 4.65 m²
- 1 salon 35.25 m²
- 1 séjour
- 3 chambres 12.07 m², 9.12 m², 10.53 m²
- 1 salle d'eau 9.77 m²
- 1 WC 1.54 m²
- 1 terrasse 12.35 m²
- 1 jardin 132.11 m²
- Info. financières
- Prix de vente Honoraires à la charge du vendeur 272 000 €
- Consulter le barème des honoraires
- Environnement
- Quartier Tours-Nord-Aéroport de Tours - Val de Loire
- Transport Autoroute , Bus , Gare
- A proximité Golf , Centre commercial , Centre ville , , École
- Info. complémentaires
- Année de construction 2025
- Chauffage individuel , chaudière , gaz
- Ascenseur Oui
- Diagnostics
- DPE :

Demande de renseignements
Votre interlocuteur
Cédric LARZUL
- Tours - Amboise - Orléans - Blois - Nantes - La Baule
- 0625261676
LIEUX UNIQUES ®
- 4, rue du 1er Septembre 41000 Blois
- 0625261676
