









Sale Apartment Dinard 35800 Plages-Saint-Malo-Dinan
- apartment
-
- DINARD (35800)
- Plages-Saint-Malo-Dinan
-
Ref. : LI1-593
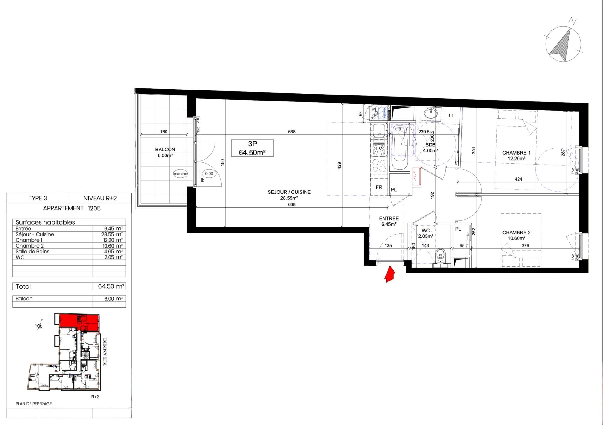
LIEUX UNIQUES ® Rennes-Dinard-Saint-Malo x PROPRIÉTÉS PRIVÉES. Contacter Cédric LARZUL de LIEUX UNIQUES ® Rennes-Dinard-Saint-Malo pour ce très bel appartement de 64.50 m² (Loi Carrez) (au 2ème étage d'une petit résidence qui comporte seulement 11 appartements), situé dans l'hyper-centre de Dinard et à proximité des commerces, des services et des plages du Prieuré, de l'Écluse et Saint-Énogat. Livrable 1er trimestre 2027.
Cet appartement comprend : une entrée (de 6.45 m²), un salon-séjour-cuisine (de 28.55 m²), une chambre 1 (de 12.20 m²), une chambre 2 (de 10.60 m²), une salle de bains (de 4.65 m²), un WC (de 2.05 m²), et un balcon (de 6.00 m²).
MON AVIS : un appartement dans un emplacement de premier choix au sein d'une station balnéaire réputée comme l'une des plus prestigieuses de France. Cet immeuble de 4 étages est couronnés d’un attique subtilement habillé de zinc prépatiné. L'appartement est doté de prestations et d'équipements pour votre bien-être et votre confort : production d’eau chaude par chaudière individuelle gaz à condensation, radiateurs métalliques avec robinets thermostatiques, carrelage dans le séjour et la cuisine, parquet dans les chambres, salle de bains avec faïence toute hauteur et sèche serviettes, WC suspendu, volets roulants à commande électrique dans les pièces principales, pare-vues en métal laqué gris anthracite et verre dépoli et serrure de sécurité 3 points de fermeture
Le toit-terrasse végétalisé permet de bénéficier d’une bonne isolation thermique été comme hiver. Ce choix de revêtement végétal contribue au biotope de ce très bel ensemble urbain.
MON CONSEIL : Vous êtes à côté de l'hôpital, du marché et à proximité immédiate des plages. Pour une résidence secondaire voire une résidence principale. Situation exceptionnelle.
LIEUX UNIQUES ® Rennes-Dinard x PROPRIÉTÉS PRIVÉES - 06.25.26.16.76 - plus d’informations sur 3w lieuxuniques com. Le prix de vente est de 520,000 euros honoraires d’agence inclus (honoraires d’agence à la charge du vendeur). Immobilier de Luxe LIEUX UNIQUES ® - Immobilier de Prestige LIEUX UNIQUES ® - Immobilier de Charme LIEUX UNIQUES ®. RCS BLOIS : 790 024 848. Lot : 1205.
- Digest
- Surface 64.5 m²
- Number of rooms 3
- Number of bedrooms 2
- In co-ownership 11 lots
- rooms
- 1 kitchen 28.55 m²
- 1 entry 6.45 m²
- 1 living-room
- 1 lounge room
- 2 bedrooms 12.2 m², 10.6 m²
- 1 bathroom 4.65 m²
- 1 toilet 2.05 m²
- 1 balcony 6 m²
- Financial information
- Selling price Agency fees chargeable to the seller 399,000 €
- Consult the scale of agency fees
- Environment
- District Plages-Saint-Malo-Dinan
- Transport Highway , Bus , Station
- Nearby Golf (7 km) , Shopping mall (650 m) , City center (500 m) , (1 km) , School (800 m)
- Complementary information
- Year of construction 2026
- Chauffage individual , boiler , gas
- Elevator Yes
- Diagnoses
- DPE :

Inquiry
Your contact
Cédric LARZUL
- Tours - Amboise - Orléans - Blois - Nantes - La Baule
- 0625261676
LIEUX UNIQUES ®
- 4, rue du 1er Septembre 41000 Blois
- 0625261676
